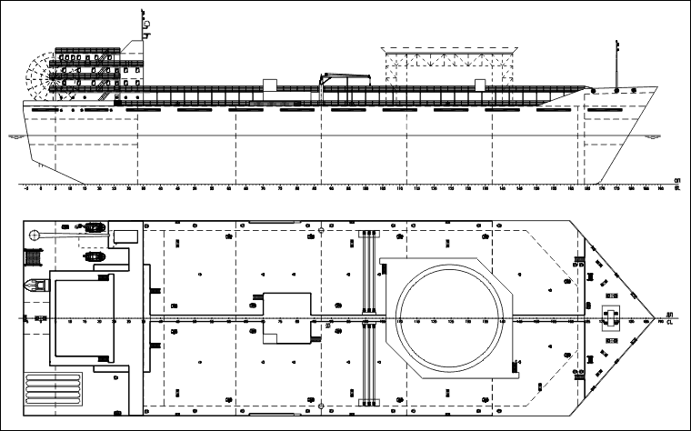
PROJECT OB12
330000 t DWT floating oil-storage unit






Purpose - continual receive to 6500 t/days crude oil from sleetproof stationary mouth bay on underwater manifolds through dotty berth, oil storing on board, shipping oil on tankers-canoe.
# | Name | Value |
---|---|---|
1. | Main dimensions | |
Length hull overall, m | 129.90 | |
Breadth scantlings, m | 40.0 | |
Depth, m | 16.0 | |
L x B x H | 129.90 x 40.0 x 16.0 = 82 560 | |
2. | Draught, m | 10.0 |
3. | Deadweight at sea (draught 10.0 m), t | 33000 |
4. | Cargo capacity at sea (draught 10.0 m), t | 31000 |
5. | Endurance, days | 30 |
6. | Number of cargo / slop tanks | 8 / 2 |
7. | Capacity of cargo and slop tanks, m³ | 40300 |
8. | Cargo pumps output, m³/h | 8 x 300 |
9. | Slop pumps output, m³/h | 2 x 300 |
10. | Manifolds | a bow manifold for loading oil; shipboard manifolds (starboard / port side) for delivery oil; after-body manifold for delivery oil by "tandem" methods |
11. | Potential output of receipt of goods, m³/h | 350 |
12. | Potential output delivery of goods (at loading tankers of "Armada Leader" type), m³/h |
1200 |
13. | Maximum possible output delivery of goods, m³/h | 3000 |
14. | Class Det Norske Veritas | ![]() Bow Loading Crane E0 HELDK-S HMON-1 ICS Offloading SPM Clean Design |
15. | Bow thruster (fully steerable screw-rudder pump), kW |
650 |
16. | Auxiliary engines: | |
diesel-generators, kW | 2 x 770 + 2 x 770 |
|
emergency / harbor diesel-generator, kW | 1 x 500 | |
17. | Nature-conservative equipment on board FSU | work-boat, reels with slick bar, hot-metal-slag separator, sorbent |
18. | Crew / berth, pers. | 25 / 33 |